achieve leadership in solar tracker industry

achieve leadership in solar tracker industry

1+1 Adjustable Rack

1+1 Adjustable Rack HY-AR

Contact Us
HY-AR TECHNICAL SPECIFICATION
Product Model HY-AR
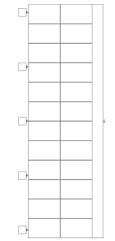
Surface Area Up to 88m²
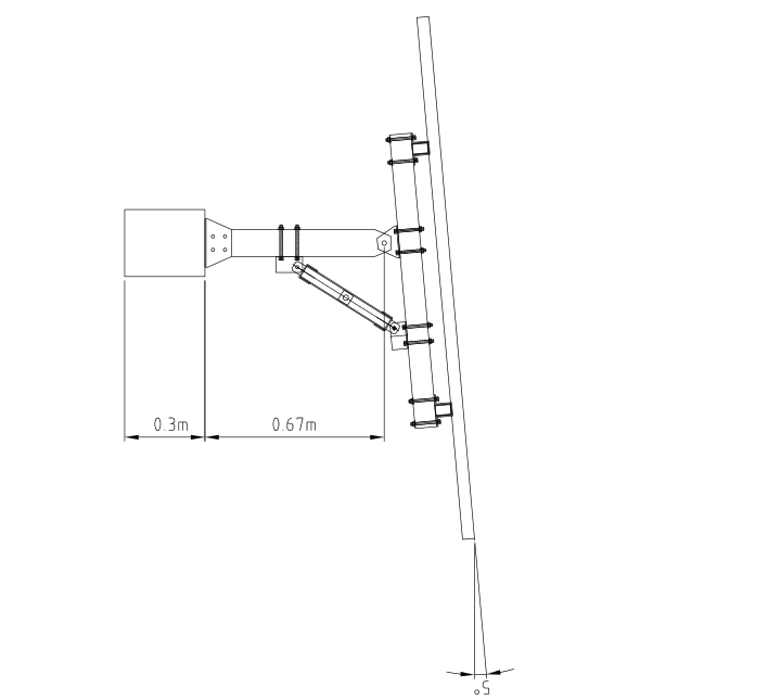
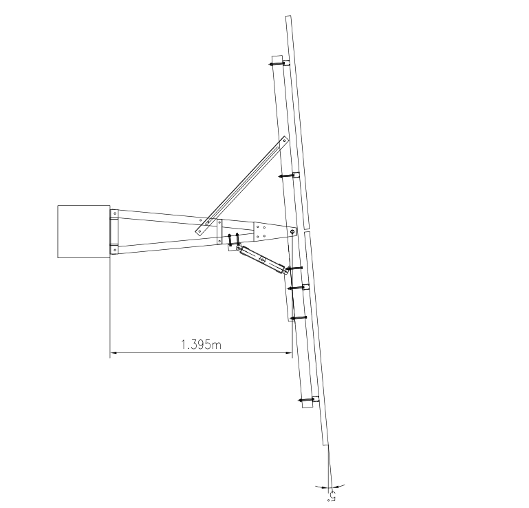
Adjusting accuracy ±2.0°
Installed solar panel type 250W—350W
Number of modules per string Up to 44 modules
Adjusting angle range 0°--- 60°
Maximum working wind speed 25m/s
The maximum wind speed 42m/s
The power output increasing Up to 10%
Module Arrangement Horizontal or vertical
Life time >25years
Steel parts surface treatment Hot dip galvanized
The number of person to adjust one unit 1 person
Time to adjust one set 1 minute
Man hour of adjusting angle/MWp/once 8 hours for one person
Adjusting method Manual or Electric screwdriver
Adjusting tool Handle, Recliner, Electric Screwdriver
Adjusting torque <10N.m
Qualifications ISO9001
Foundation Type Strip foundation, Filling pile, Screw Pile
Certification Wind Tunnel Testing
Warranty 5 years;