| HY-HLD技术参数 | |
| 产品型号 | HY-AR |
| 承载面积 | 最大88m² |
| 角度调节精度 | ±2.0° |
| 组件安装型号 | 250W—350W |
| 可安装组件功率 | 250Wp--330Wp |
| 组件安装数量 | 最多44 片 |
| 角度调整范围 | 0°--- 60° |
| 最大调节时风速 | 25m/s |
| 最大静态风速 | 42m/s |
| 相对固定支架发电量提高 | 最多可以达到 10% |
| 组件排列模式 | 横排或竖排 |
| 设计寿命 | >25年 |
| 防腐处理 | 热镀锌 |
| 每台调节所需人数 | 1人 |
| 调节每台需时间 | 1分钟 |
| 调节人工时/MW/次 | 1个人8小时 |
| 角度调节方式 | 人工或电动起子 |
| 调节工具 | 摇把,调角器,电动起子 |
| 调节扭矩 | <10N.m |
| 认证 | ISO9001 |
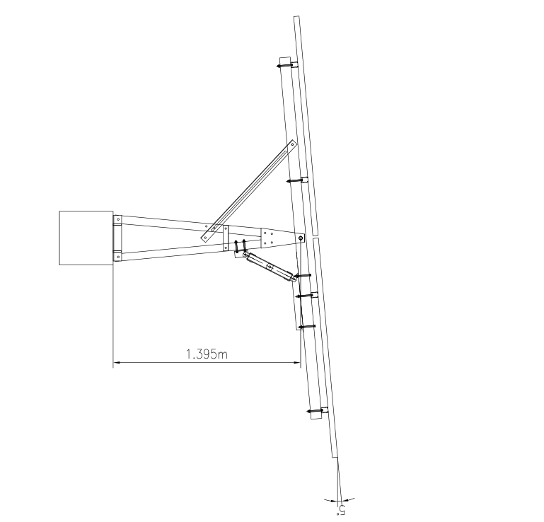
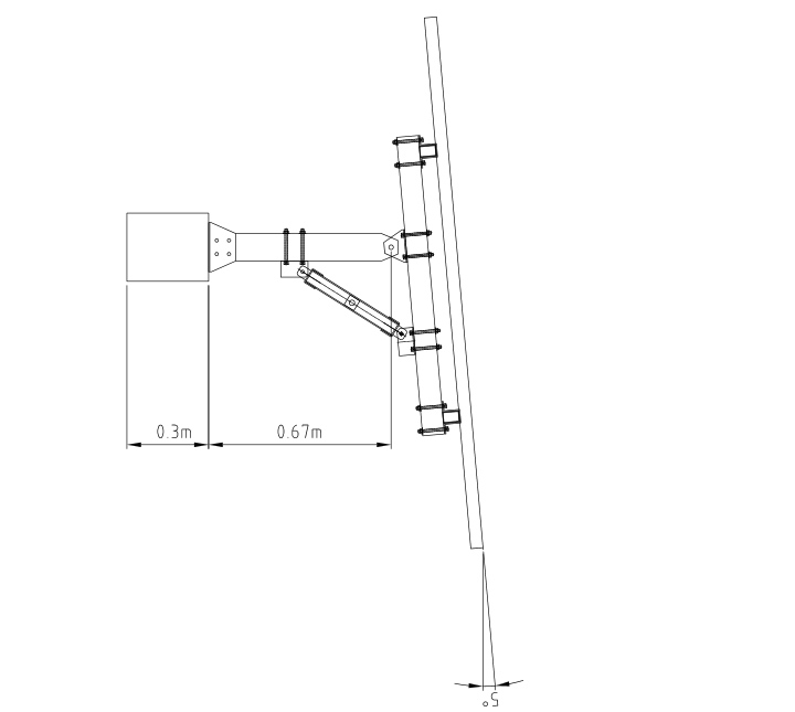
| 基础形式 | 灌注桩、条基、地锚 |
| 第三方测试 | 风洞实验护 |
| 质保期 | 5年 |